OFERUJEMY
Profesjonalne usługi
BUDOWA I SPRZEDAŻ DOMKÓW
Na podstawie własnego projektu typowego o nazwie 100doła (możliwość sprzedaży naszego typowego projektu z wybudowaniem go na działce inwestora).
kompleksowe wykańczanie wnętrz
Wykonujemy kompleksowe wykończenia wnętrz oraz remonty, instalacje wodno-kanalizacyjne, elektryczne budynków użyteczności publicznej, domów i mieszkań.
PROJEKTOWANIE WNĘTRZ
Badamy Twoje potrzeby i upodobania, aby dopasować odpowiednie rozwiązania. Tak aby polepszyć jakość i komfort życia w Twoim domu, mieszkaniu czy biurze.
DOM NA SPRZEDAŻ
ŁAŃCUT UL. GŁOWACKIEGO










Dom "100doła"
Cena : 799 000 zł
- Pow. nieruchomości: 120,9 m2
- Pow. użytkowa razem: 120 m2
- Pow. całkowita 166,05 m2
- Ilość pokoi: 4
- Działka 424 m2
- Prospekt Pobierz prospekt
- Karta produktu Pobierz kartę produktu
Kontakt:
biuro@pro100dominikniezgoda.pl
- Wysokość do kalenicy: 8,64 m
- Kąt nachylenia dachu: 30°
- Kubatura: 333,22 m3
- Ogrzewanie: Pompa ciepła
- Wentylacja: Mechaniczna z rekuperatorem
Jeśli szukasz energooszczędnego, domu o nowoczesnej bryle i funkcjonalnej przestrzeni, to zapraszam Cię do zapoznania się z naszą ofertą.
Projekt ten powstał z myślą o oszczędzaniu energii. Cechuje go przede wszystkim:
E N E R G O O S Z C Z Ę D N O Ś Ć
za sprawą pełnej ciągłości izolacji termicznej, pompy ciepła, instalacji wentylacji mechanicznej z rekuperacją, która pozwoli na odzyskanie ciepła z powietrza.
F U N K C J O N A L N O Ś Ć
dzięki rozplanowanej przestrzeni oraz pełnej wysokości pomieszczeń na drugiej kondygnacji
J A K O Ś Ć
Poprzez wykorzystanie wysokiej klasy materiałów budowlanych z dbałością o szczegóły wykonania na każdym etapie budowy.
Zapraszamy do skorzystania z naszej usługi budowy domów energooszczędnych o nazwie „100doła”. Nasza firma skupia się na tworzeniu innowacyjnych i ekologicznych rozwiązań, które nie tylko dbają o środowisko, ale również przynoszą oszczędności na rachunkach.
Jesteśmy specjalistami w budowie domów energooszczędnych i stale rozwijamy naszą ofertę. Niezależnie od tego, czy masz już własną działkę, czy szukasz odpowiedniego miejsca, możemy zaoferować Ci nasze usługi. Nasza oferta obejmuje sprzedaż domów na naszych własnych działkach, ale również dajemy możliwość wybudowania naszego budynku na Twojej działce.
Ponadto, oferujemy również nasze indywidualne projekty, które możesz zakupić. Nasz zespół doświadczonych architektów i inżynierów pracuje nad stworzeniem projektów, które spełniają najwyższe standardy energooszczędności i funkcjonalności. Gwarantujemy, że każdy nasz projekt jest dostosowany do Twoich potrzeb i preferencji, zapewniając wyjątkowe i spersonalizowane rozwiązania.

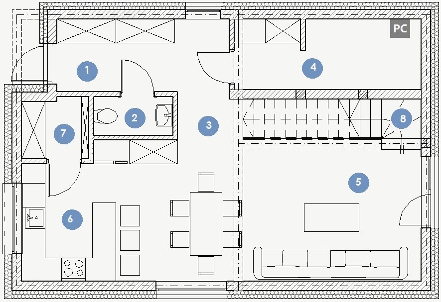
1
hol
5,6 m2
2
łazienka
1,9 m2
3
komunikacja
5,2 m2
4
pomieszczenie gospodarcze
8,2 m2
5
pokój dzienny + jadalnia
21,2 m2
6
kuchnia
13 m2
7
spiżarnia
2,5 m2
8
klatka schodowa
4,7 m2

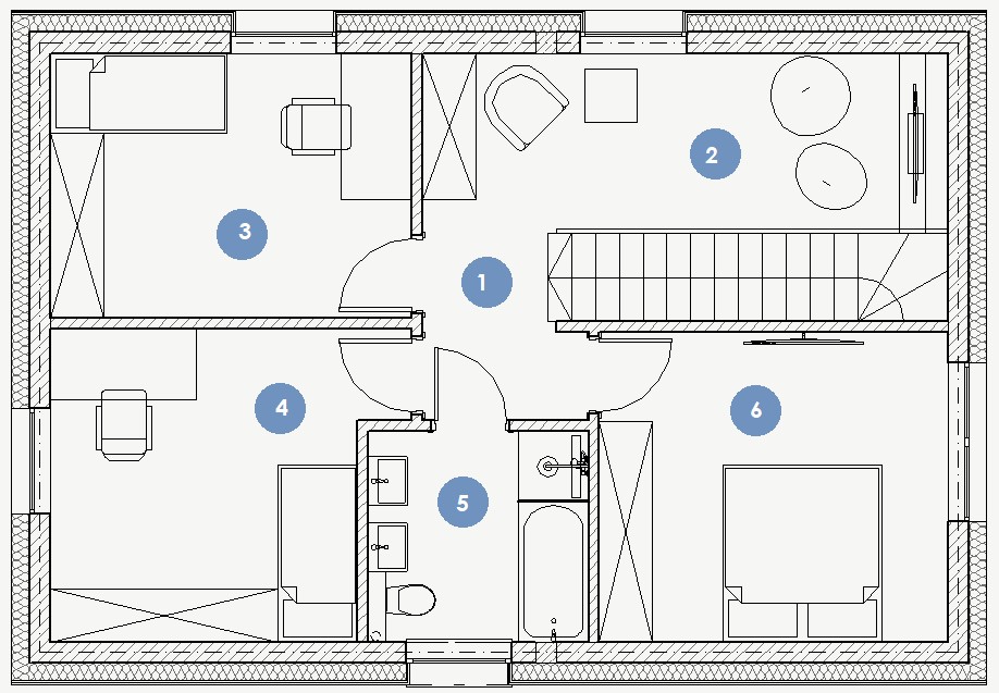
1
komunikacja
3,5 m2
2
Pokój rekreacyjny
11,9 m2
3
pokój
12 m2
4
pokój
12,7 m2
5
łazienka
5,8 m2
6
sypialnia
13,6 m2
Załącznik zawiera kosztorys uproszczony w formie tabeli i przedstawia koszty realizacji budynku w zależności od stanu wykończenia, który dzieli się na stan:
- „zerowy”, w którym to prace budowlane kończą się na poziomie płyty fundamentowej „podłogi” parteru z przygotowaniem przepustów do poprowadzenia koniecznych instalacji;
- surowy „otwarty”, to kolejny etap budowy, w którym powstają ściany zewnętrzne oraz wewnętrzne, stropy, konstrukcja dachu, pokrycie dachu a także obróbki dachu wraz z orynnowaniem;
- surowy „zamknięty”, który cechuje montaż stolarki okiennej, drzwi zewnętrznych;
- „deweloperski”, tzn. ocieplenie ścian zewnętrznych, wykonanie elewacji, montaż parapetów, docieplenie stropu, położenie tynków wewnętrznych, wykonanie wylewek podłogowych, podłączenie i rozprowadzenie instalacji: wodno-kanalizacyjnej, wentylacji mechanicznej, elektrycznej, centralnego ogrzewania.
Podane kwoty uwzględniają materiał oraz robociznę.
POZNAJ NAS
Firma PRO100
Swoją działalność rozpoczęła w 2012 r. Od początku jej istnienia stawiamy na nowoczesne technologie budowlane, najwyższą jakość stosowanych materiałów oraz ciągły rozwój.
Posiadamy wieloletnie doświadczenie w wykonywaniu wszelkich prac budowlanych, głównie w kompleksowych remontach budynków użyteczności publicznej, domów i mieszkań jak również zajmujemy się budową domów jednorodzinnych, wykonaniem i realizacją płyt fundamentowych.
Dodatkowo świadczymy usługi w zakresie projektowania wnętrz a także posiadamy w sprzedaży indywidualny projekt małego i ergonomicznego domku.
Jesteśmy solidną i cenioną firmą budowlaną potrafiącą sprostać każdemu zadaniu. Gwarantujemy profesjonalizm, fachowe doradztwo, terminowość, wysoką jakość świadczonych przez nas usług a także kompleksowość.
PORTFOLIO
PRZYKŁADOWE REALIZACJE

Wykonanie Elewacji Wraz Z Obróbkami Blacharskimi Na Budynku K1, J1 Na Ul. Architektów W Rzeszowie.

Budowa altany drewnianej na działce komunalnej nr 1955 w Czarnej.

Remont budynku nr 13 (III etap) zlokalizowanego w kompleksie wojskowym w Rzeszowie przy ul. Krakowskiej 11B

Przebudowa i zmiana sposobu użytkowania części budynku ośrodka kultury na potrzeby centrum opiekuńczo- mieszkalnego w Woli małej

Remont elewacji, balkonów i robót towarzyszących w budynku mieszkalnym Lewakowskiego 12 w Rzeszowie

Adaptacja pomieszczeń schronu na magazyny dokumentacji bieżącej i AZ w O/Rzeszów, al. Piłsudskiego 12

Remont Budynku Zespołu Szkolno - Przedszkolnego nr 8 w Rzeszowie przy ul. Dąbrowskiego 66A

Budowa drogi p. pożarowej wzdłuż bloku przy ulicy Rzeszowskiej 79 wraz z rozbudową parkingu w Dębicy

Wykonanie robót budowlanych modernizacyjnych i termomoderni - zacyjnych w trzech budynkach komunalnych: Przesmyk 2, Króla Kazimierza 29 i Króla Kazimierza 31 w Rzeszowie

Modernizacja Oddziału rehabilitacji w ramach zadania inwestycyjnego pn. Podniesienie jakości i dostępu do świadczonych usług medycznych SPZ ZOZ w Nowej Dębie"

Termomodernizacja Elewacji Budynku Szkoły Wraz Z Remontem Głównych Schodów Wejściowych Oraz Ewakuacyjnych W Szkole Podstawowej Nr 11 W Rzeszowie

Budowa dróg p. pożarowych wzdłuż bloków przy ulicy Fredry 9,11,13 i 15 wraz z remontem zwiększonych odcinków dojść i traktów pieszych w Dębicy.

Remont Elewacji I Balkonów W Budynku Mieszkalnym Wielorodzinnym Przy Ul. Zbyszewskiego 9 W Rzeszowie

Remont Elewacji Oraz Balkonów Budynku Mieszkalnego Przy Al. Wyzwolenia 21 W Rzeszowie
Dlaczego warto wybrać właśnie nas?
10 lat +
Doświadczenia
- Rzetelność
- Jakość
- Wiedza i umiejętności
- Terminowość
NASI PARTNERZY
Współpracujemy z znanymi markami

















